
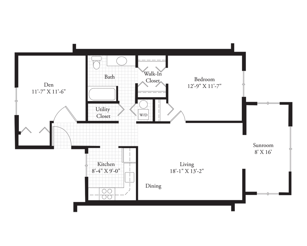
Cottage Home Floor Plans
Choose the floor plan that suits your needs (please note that dimensions are approximate):
A Printable PDF is also available
Want to know more about Foxdale Village?
We hope you’ll plan a visit soon to Foxdale for a tour and to meet some residents.








